EN

Technické kreslení

Jaroslav Kletečka, Petr Fořt


Dotisk úspěšného bestselleru!
Aktualizovaná učebnice pro střední školy. Soustředí se především na základní pravidla názorného zobrazování a popisů objektů podle aktuálních státních norem (ČSN), které jsou v souladu s normami celoevropskými (EN) a celosvětovými (ISO). Ve dvanácti kapitolách se čtenář seznámí se základy technického kreslení od teoretických základů přes praktická cvičení až po řešení rozsáhlejších, oborově zaměřených projektů.

Informácie

Jazyk čeština
Počet strán 256
EAN 9788025118870
Dátum vydania 27.8.2012
Vek od 15
Formát 167x225 mm
Vydavateľstvo COMPUTER PRESS
Hmotnosť 0,416
Typ kniha
Väzba brožovaná lepená

Učebnice technického kreslení zkušených pedagogů Jaroslava Kletečky a Petra Fořta seznamuje studenty se základy technického kreslení. Soustředí se především na základní pravidla názorného zobrazování a popisů objektů podle aktuálních státních norem (ČSN), které jsou v souladu s normami celoevropskými (EN) a celosvětovými (ISO).

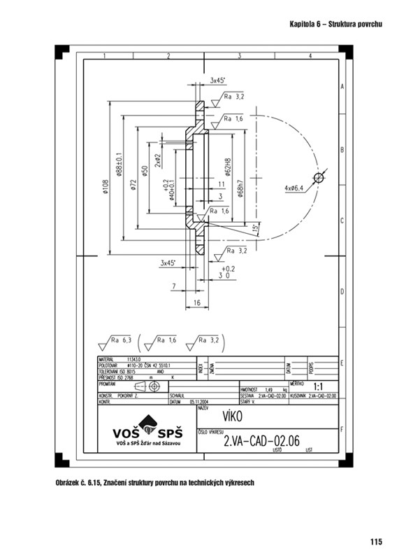
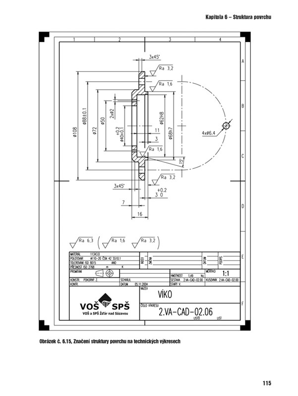
Ve dvanácti kapitolách se čtenář seznámí se základy technického kreslení od počátečních teoretických základů přes praktická cvičení až po řešení rozsáhlejších oborově zaměřených projektů. Nedílnou součástí knihy jsou praktické ukázky mnoha výkresů s vysvětleními a popisem a velmi originální využití prostorových 3D pohledů, jež velmi usnadní uživatelům knihy pochopení probírané problematiky.

Učebnice mapuje kromě strojírenství také výběr pasáží pro kreslení výkresů ve stavebnictví a kreslení schémat. Součástí knihy je barevná příloha tvořená ukázkami komerčních projektů převzatých z naší i zahraniční praxe.

Učebnice je postavena na úzké integraci technického kreslení s nejmodernějšími postupy navrhování pomocí aplikované výpočetní techniky (www.repair2000.cz). Je ideálním úvodním studijním materiálem pro práci s CAD systémy a doporučeným studijním materiálem pro vzdělávací modul úrovní P a S zaměřených na CA technologie v projektu SIPVZ (www.e-gram.cz).

Kniha je určena především studentům středních průmyslových škol. Vychází z obsahu předmětu technické kreslení, ale věříme, že si své uplatnění najde i u dalších uživatelů v praxi.

O autorech:

Ing. Jaroslav Kletečka (*1958) po studiích na SPŠS a VUT Brno působí jako technolog v podniku ŽĎAS. Od roku 1983 vyučuje na VOŠ a SPŠ ve Žďáře nad Sázavou předměty zaměřené na oblast technické dokumentace a počítačovou podporu konstruování. Je rovněž vedoucí střediska Autodesk Training Center, později Autodesk Academia, a autorem učebnic a článků mapujících tvorbu technické dokumentace a problematiku počítačového navrhování s využitím 2D a 3D aplikací. Od roku 1994 úzce spolupracuje s firmami v oblasti počítačové podpory předvýrobních etap. Je autorem vzdělávacího modulu CAD projektu SIPVZ.

Ing. Petr Fořt (*1968) po vyučení a studiích na VUT Brno působí jako technolog v podniku ŽĎAS. Od roku 1992 vyučuje na VOŠ a SPŠ ve Žďáře nad Sázavou odborné předměty zaměřené na aplikované informační technologie. Je rovněž administrátorem informačních systémů na platformách Windows, Novell a Linux, autorem článků a učebnic v oblasti počítačové podpory konstruování a tvůrcem projektu REPAIR 2000 zaměřeného na minimalizaci nákladů pro údržbu informačních systémů. Od roku 1995 externě spolupracuje s firmami v oblasti počítačového navrhování a administrace informačních systémů. Je autorem vzdělávacího modulu CAD projektu SIPVZ.

Uživateľská recenzia

Žiadne užívateľské hodnotenia nie sú dostupné.

Vaše hodnotenie

Používateľskú recenziu môžu vkladať len registrovaní užívatelia

 Prihlásiť
Autor knihy
Petr Fořt

Petr Fořt

Odborník ve výživě s praxí v klinické biochemii, imunochemii a sportovní fyziologii, bývalý poradce reprezentačních týmů a profesionálních sportovců. Spolupracuje s odbornými lékaři především v oblasti preventivní medicíny a řešení obezity. Je autorem speciálního systému s názvem Komplexní nutriční typologie, který slouží k hodnocení nutričního stavu. Angažuje se v popularizaci zdravé výživy, v řešení obezity a dětské výživy a hodnocení specifických výživových stylů. Je autorem více než dvou desítek knižních publikací.
Zobraziť profil autora
NAPÍŠTE NÁM